こちらの物件を見たお客様はこんな物件もチェックしています
-
10,880万円4LDK
-
5,680万円2SLDK
-
8,499万円4SLDK
-
8,699万円4LDK
こちらの物件は複数区画の分譲地や他にも販売中の物件があります。
![]() |
![]() |
横浜市神奈川区青木町
13790万円〜14490万円 |
神奈川区青木町 全2棟1号棟 神奈川県横浜市神奈川区青木町|13,790万円の新築一戸建て|センチュリー21日立ホーム
写真枚数:36枚
●各フロアにトイレと洗面設置、忙しい朝や感染症対策にも便利●LDKと同フロアに水回りを集約。家事を同時にこなせ、子どもの見守りや家族との時間も大切にできます
| 価格 | 13,790万円 | ||
|---|---|---|---|
| 物件種別 | 新築一戸建て | ||
| 所在地 | 神奈川県横浜市神奈川区青木町 | ||
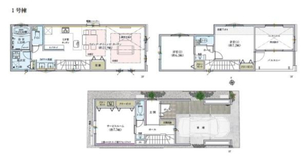
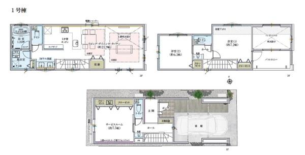
| 土地面積 | 72.95m² (22.06坪) | ||
| 建物面積 | 131.44m2 | ||
| 築年月 | 2025年12月築 | ||
| 間取り | 2SLDK | ||
| 交通 |
京急本線 神奈川駅 徒歩4分
JR東海道本線 横浜駅 徒歩11分 東急東横線 横浜駅 徒歩11分 |
||
| 採光面 | - | 構造/階数 | 地上3階建 |
| 建ぺい率 | 60(%) | 容積率 | 160(%) |
| 駐車場 | 有 | 現況/引渡し | 新築/相談 |
| 土地権利 | 所有権 | 私道負担面積 | - |
| 接道状況 | 接道: 東 公道 道路幅: 4m | 用途地域 | 第一種住居地域 |
| セットバック | - | 法令上の制限 | - |
| 地目 | 宅地 | 地勢 | |
| 建築確認番号 | 都市計画 | 市街化区域 | |
| 取引態様 | 仲介 | ||
| 情報更新日 | 2026年03月03日 | ||
| 次回更新日 | 2026年03月17日 | ||
※各種情報と差異がある場合は現況優先となります
| 小学校区 | 横浜市立幸ケ谷小学校(神奈川県横浜市)神奈川県横浜市立幸ケ谷小学校学区の他の物件を見る |
|---|---|
| 中学校区 | 栗田谷中学校(神奈川県横浜市)神奈川県横浜市立栗田谷中学校学区の他の物件を見る |
※物件情報の学区情報について
当サイト物件情報に記載されております通学区域(学区)情報は、国土数値情報ダウンロードサービスが提供する小学校区データ【2016年度】及び中学校区データ【2016年度】を元に加工したものですので、記載情報が現在の学区域と異なる場合がございます。
国土数値情報ダウンロードサービスのWEBサイト上で記述通り、データは必ずしも正確とは言えません。また、通学区域(学区)は毎年見直しの対象となりますので、そちらを踏まえ学区情報は参考としてご活用下さい。
| 価格 | 万円 | ||
|---|---|---|---|
| 年利率 | % |
||
| ボーナス払い | |||
| 返済年数 | |||
| 頭金 | 万円 | ||

毎月のご返済額 |
ボーナス(×年2回) |
物件価格13,790万円 |
![]() |
![]() |
横浜市神奈川区青木町
13790万円〜14490万円 |
販売価格
13,790万円
所在地
神奈川県横浜市神奈川区青木町
交通
京急本線 神奈川駅 徒歩4分
JR東海道本線 横浜駅 徒歩11分
東急東横線 横浜駅 徒歩11分
物件番号
RHS-011901-319707
「ホームページを見た」とお伝え下さい。
電話でお問い合わせ
0120-31-8821
営業時間:9:30〜20:00(※定休日の受付は9:30〜17:00)